КОМПАС-График
Нужна консультация?
Наши специалисты ответят на любой интересующий вопрос
Варианты поставки
КОМПАС-График может использоваться при разработке рабочей и проектной документации (чертежей, схем, расчетно-пояснительных записок и многого другого) и подойдет для организаций, которым требуется больше возможностей для автоматизации проектирования технологических решений, несущих конструкций, внешних и внутренних систем и сетей.
Основные возможности программы
|
Работа в 2-D режиме Возможность работы с графическими инструментами, наличие параметра параметризация.
Возможность объектного проектирования.
Наличие обширной базы данных строительных элементов.
Возможность разработки проектной и рабочей документации.
Наличие специализированных, подготовленных шаблонов по СПДС.
Возможность импорта и экспорта данных.
Наличие большого числа дополнительных строительных приложений, для работы с которыми требуется КОМПАС-График или КОМПАС-3D (приложения приобретаются отдельно или входят в состав комплектов). |
|
|
|
Импорт/экспорт Возможность поддержки таких форматов, как: DXF, DWG, IGES, IFC, SAT, STEP, Parasolid.
Возможность сохранения чертежей и 3-D объектов в форматы растровой графики BMP, GIF, JPEG, TIFF, TGA, PNG.
Возможность публикации документов в нередактируемых форматах EMF, WMF, EDW, PDF.
Возможность сохранения инженерных документов в текстовые форматы ТХТ, таблицы - в XLS. |
|
Работа с форматами Возможность оформления графической и текстовой документации по СПДС.
Возможность чтения сторонних форматов: DWG, DXF, IGES, IFC, SAT, STEP, Parasolid.
Возможность проверки документации.
Возможность многолистовой печати проекта. |
|
Для проектирования в системе предусмотрены
|
|
|
Поддерживаемые приложения и каталоги
|
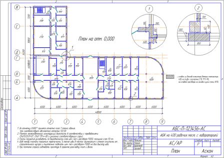
Архитектура АС/АР для автоматизации выпуска проектной документации комплектов АС и АР в среде КОМПАС-3D.
|
|
|
СПДС-Помощник для оформления чертежей в соответствии со стандартами системы проектной документации для строительства (СПДС). Соблюдение стандартов СПДС позволяет унифицировать правила оформления различной проектной документации.
|
|
|
Железобетонные конструкции: КЖ для автоматизации процесса проектирования и выпуска проектной документации марки КЖ/КЖИ.
|
|
|
Металлоконструкции: КМ для автоматизации процесса проектирования и выпуска проектной документации марки КМ.
|
|
|
Жизнеобеспечение: ВК для строительного проектирования при разработке комплектов рабочих чертежей разделов Водоснабжение и Канализация.
|
|
|
Жизнеобеспечение: ОВ для автоматизации выпуска проектной документации разделов Отопление и Вентиляция и реализует требования ГОСТ 21.602-2003 «СПДС. Правила выполнения рабочей документации отопления, вентиляции и кондиционирования». Инструменты приложения функционально поделены на две части — отопление и вентиляция, а также общую часть для работы с сегментами участков трубопроводов и воздуховодов, формирования аксонометрических схем и разрезов, спецификаций и генерации 3D-модели.
|
|
|
Технология: ТХ для автоматизации выпуска проектной документации раздела «Технология производства».
|
|
|
Газоснабжение: ГСН для автоматизации процесса подготовки и выпуска рабочей документации для прокладки газопроводов.
|
|
|
Наружные сети: НВК для решения задач автоматизации подготовки и выпуска рабочей документации для прокладки трубопроводов наружных сетей водоснабжения и канализации.
|
|
|
Тепловые сети: ТС для решения задач автоматизации подготовки и выпуска рабочей документации для прокладки тепловых сетей.
|
|
|
Каталог Металлопрокат предназначен для ускорения процесса проектирования при создании чертежей марок КМ/КМД.
|
|
|
Каталог ОПС предназначен для автоматизированного проектирования охранно-пожарной сигнализации (ОПС) зданий и сооружений.
|
|
|
Каталог СКС предназначен для автоматизированного проектирования структурированных кабельных систем (СКС) зданий и сооружений.
|
|
|
Каталог Строительные машины предназначен для формирования графических, текстовых и табличных документов, необходимых при разработке проектов организации строительства и производства работ (ПОС и ППР).
|
|
|
Каталог План эвакуации предназначен для разработки и оформления планов эвакуации в соответствии с требованиями ГОСТ Р 12.2.143-2002.
|
|













