Монолит
Нужна консультация?
Наши специалисты ответят на любой интересующий вопрос
Варианты поставки
Основные возможности программы
|
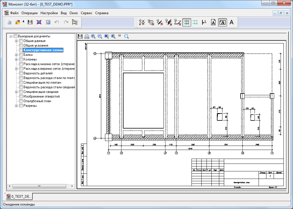
Схема перекрытия Возможность компоновки общей схемы перекрытия на ортогональной сетке узлов, имеющих последовательную нумерацию. Расположение узлов в местах пересечения конструктивных элементов перекрытия - балок, стен, колонн. Плиты перекрытия постоянной толщины взяты расположенными в уровне верхней грани балок. Балки прямоугольного сечения (таврового с полкой у верхней грани) подразделяются на:Опорами перекрытия служат несущие стены здания и(или) колонны монолитного каркаса. Определение условий опирания перекрытия на стены материалом стен: Возможность эксцентричного размещения всех несущих элементов сооружения (стены, колонны, балки) относительно осей, соединяющих узлы разбивочной сетки.
|
|
|
|
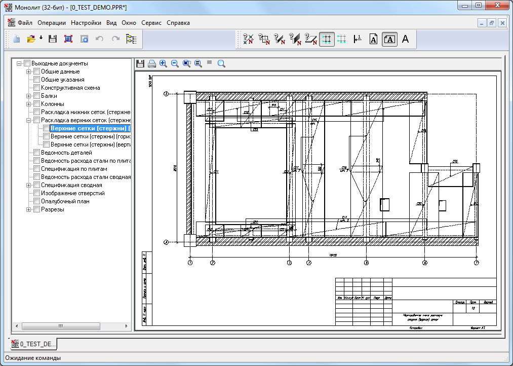
Сетки и каркасы Возможность армирования конструкций отдельными стержнями (без отгибов), сварными каркасами и сетками, созданными с помощью точечной сварки соединений стержней. |
|
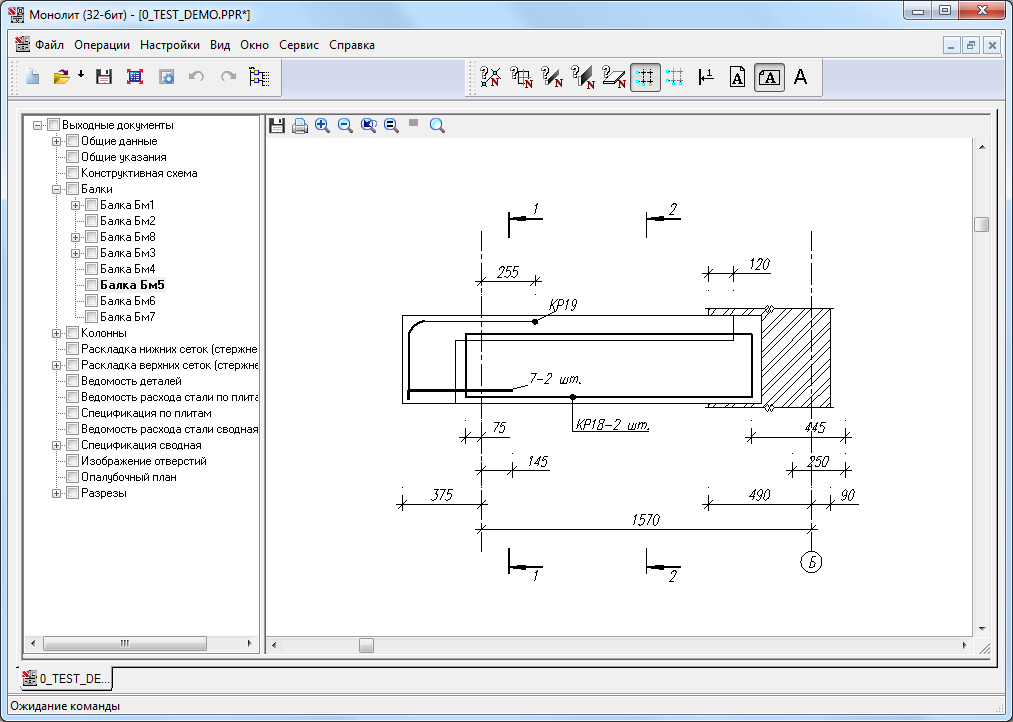
Результаты работы Возможность получения комплекта рабочих чертежей перекрытия: опалубочный план с характерными сечениями,
|
|
|
|
Выходные документы Возможность вывода документов на устройства другого формата, а также Plotter. Возможность импорта в формат DXF для доработки выходных документов. |



