Model Studio CS ОПС
Нужна консультация?
Наши специалисты ответят на любой интересующий вопрос
Варианты поставки
Решаемые задачи
Основные возможности программы
|
База данных
Наличие базы данных программы с информацией по специализированному оборудованию, изделиям и материалам, применяемым для выполнения трехмерной модели систем Хранение данных об объектах базы в CADLib — Менеджере библиотек стандартных компонентов. Наличие в объектах всех необходимых параметров, используемых для выполнения расчетов, разработки проектных решений и оформления проектной документации. Наличие настраиваемой системы классификаторов и выборок. Возможность как использования существующих объектов базы, так и создание новых, редактирование их параметров и привязка графического изображения. |
|
|
|
Создание зон ОПС Возможность создания зон ОПС в 3-D. Возможность создания зон ОПС с помощью отрисовки контура зоны или считыванием контуров объекта проекта «Помещение». Возможность выбора алгоритма принятия решения о пожаре, от которого будет зависеть автоматическая расстановка пожарных извещателей. Возможность создания зоны ОПС для фальшпола и фальшпотолка. |
|
Автоматическая расстановка пожарных извещателей Возможность автоматической расстановки точечных пожарных извещателей в созданных ранее зонах ОПС. Возможность учета алгоритма принятия решения о пожаре и адресность извещателя при автоматической расстановке пожарных извещателей, тип решетки расстановки извещателей, высота зоны ОПС и тип извещателя. Возможность расстановки извещателей с зонами покрытия и без. |
|
|
|
Проверка расстановки пожарных извещателей
|
|
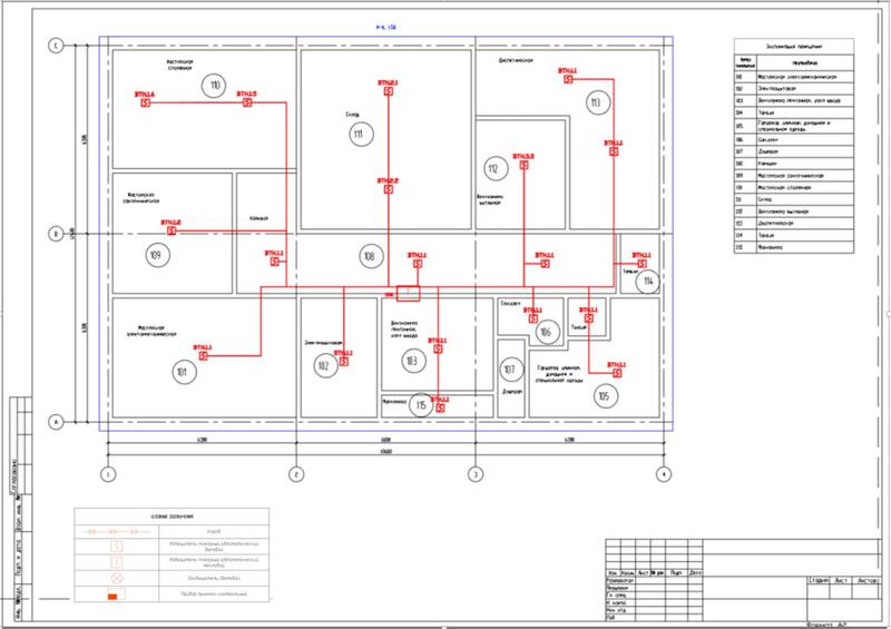
Подключение оборудования и раскладка кабеля Наличие окна Менеджера подключений для быстрого доступа ко всем элементам проектируемой системы, задействованным в соединениях в том или ином месте. Возможность управления всеми соединениями системы на разных этажах и в разных помещениях. Возможность подключения оборудования по шлейфу, выбор и изменение типа кабельной группы для каждого кабеля. Возможность смены порядка следования извещателей в шлейфе, замыкание/размыкание шлейфа, подключение извещателей к уже созданному шлейфу, переподключение объектов к другому узлу с помощью Менеджера подключений. Возможность трассировки кабельных конструкций по миникаталогам (заранее подготовленным наборам конструкций) с автоматической подстановкой углов поворота, тройников, крестовин. |
|
|
|
Получение табличной документации
Наличие инструмента Спецификатор для просмотра списка и количества примененных изделий непосредственно в программе. Возможность отслеживания в реальном времени кабельного журнала шлейфов, ведомости объемов работ, и их вывод в требуемый формат выходного документа. |
|
Получение графической документации Возможность создания плана расположения оборудования и прокладки кабелей и сечений по кабельным конструкциям с выносками, обозначениями и подписями. Возможность генерации таблицы с условными обозначениями оборудования и типами линий на плане/схеме. Возможность генерации в Model Studio CS ОПС экспликации помещений . Возможность генерации в Model Studio CS ОПС структурных схем. |
|




